Cottages

See More of the Crest Cottage
Interior Design
Options
Selections
MLS 1561468

Crest Cottage (Lot 16) Under Construction

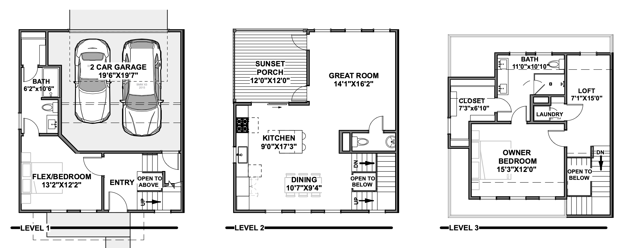
This is the final end unit at Bohemian Cottages! This three story unit features our "more house than townhouse" design! Unit is under construction but you still have time to personalize your townhome with pre-selected options and selections of your choice. Level 1 features a 2-car side by side garage, foyer with an open stairway which is open to all three levels and a flex/bedroom, with an en-suite full bath. On level 2, you will find an open floor plan with plenty of space to relax with family and friends. Off the great room and kitchen is the sunset porch.  Level 3 is a private space designed for the owners! We have enlarged the loft space, and added a window. The owner's bedroom with en-suite bathroom features a double vanity, walk-in tile shower, and a spacious walk-in closet. The laundry closet completes the amenities on level 3. The listing agent is designer/developer/builder.     

Single Family Lot and Home Ownership
Square Footages:
Heated 1599 sf
Porch 144 sf
2 Car Garage 408 sf
More “House Than Townhouse” Design
2 Bedroom, 2 Full Bath and 1 1/2 Bath
2 Car Side/Side Garage with Storage
Flex Space/Loft
GE Cafe Stainless Steel Appliance Package
Light Filled Open Floor Plan
Open Stairway with Custom Steel Rails
Natural Stained Concrete Floor Level 1
Oak Hardwood Floor Level 2 and 3
Tankless Water Heater
Spray Foam Insulation

Print Floorplan

Overlook Cottage (Sold)

Take a tour of the Overlook Cottage

Take a tour of the Upland Cottage

Upland Cottage (Sold)